EXTENSION D'UNE MAISON

 

 

 

SAINT SAULVE

MAITRE D’OUVRAGE – privé

MAITRE D’OEUVRE – SNA

BUDGET TRAVAUX – 120 k € ht

ETUDES – En cours

CONTEXTE

 

A Saint Saulve, sur la rue Jean Jaurès qui mène de Valenciennes à Onnaing, se trouve un ensemble de dix maisons tout à fait particulières. Construites sans doute au début du 20e siècle, elles disposent d’une grande cohérence par leur travail de brique rouges, de moulures et encadrements des ouvertures en pierre ainsi que des frontons et toitures en tuile rouge. En même temps, elles affichent chacune une particularité qui se manifeste par un détail de linteau, un balcon ou un rehaussement de toit qui diffère des voisins.

En bref, c’est un morceau urbain d’une grande qualité qui de plus est complété de l’autre côté de la rue, par un alignement d’arbres importants.

Chacune des maisons est positionnée légèrement en retrait par rapport à la rue sur une parcelle qui se développe en longueur jusqu’au chemin de la Longue Huree. La plupart des maisons dispose d’une série de volumes et annexes qui ont été ajoutés au corps principal dans le temps et qui (malheureusement) ne disposent ni de la même qualité ni de la même cohérence.

 

LE PROJET D’EXTENSION

 

Le maître d’ouvrage souhaite transformer son logement pour l’adapter aux besoins à venir :

  • Afin de le rendre accessible et habitable pour des personnes à mobilité réduite, notamment âgées, une unité de vie complète comportant une chambre et une salle de bains est créée au RDC.
  • Afin de limiter la consommation d’énergies fossiles et l’émission de GES, le système de chauffage au gaz est remplacé par une pompe-à-chaleur et des panneaux photovoltaïques sont installés.

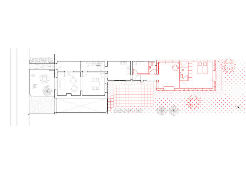
Le projet architectural ne modifie pas le corps principal de la maison, mais s’exprime par une extension du côté jardin. Cette dernière est située en limite de parcelle, en continuité avec les volumes existantes et en remplacement de la véranda.

A l’extérieur, entre la maison et son extension se dégage une terrasse plutôt minérale. D’ici un chemin mène vers le jardin à côté et derrière l’extension qui comprendra une noue pour l’infiltration des eaux pluviales, des végétations de loisir et un potager. Sous la terrasse sera installée une grande cuve d’eaux pluviales et derrière l’extension, une noue d’infiltration.

L’extension elle-même est construite en blocs de chanvre avec une bardage en briques. Une grande baie vitrée est disposée sur chacune des façades / dans chacune des pièces. La toiture est composée d’une charpente en panneaux bois et une couverture en bac acier surmontée de panneaux photovoltaïques.

A l’intérieur, la première pièce sert de connexion à la maison sans qu’une fonction précise lui soit attribuée. Ici, la fenêtre dispose d’un grand cadre formant une niche avec assise et vue sur le jardin.

La seconde pièce sera la chambre à coucher. Les deux sont séparées par un grand « meuble » en bois qui intègre la salle de bains et des rangements.

 

Version imprimable | Plan du site
© Sebastian Niemann Architectes SAS