HABITAT INDIVIDUEL DENSE

Construction de huit logements individuels

 

LOOS-EN-GOHELLE

MAITRE D’OUVRAGE - Maisons et Cités
MAITRE D’OEUVRE - SNA + BECT
BUDGET TRAVAUX - 640k € ht
SURFACE PLANCHER - 550m²
ETUDES - en cours

 

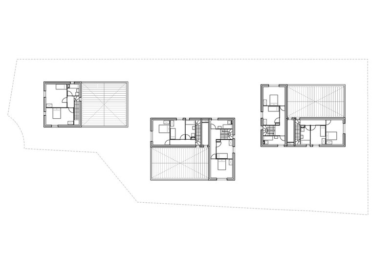
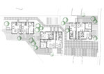
Le projet prend le parti de regrouper les logements en trois bâtiments.

Au niveau urbain, cela permet de s’insérer subtilement dans un tissu constitué principalement de grandes maisons, positionnées au milieu de leur parcelle.
Les logements peuvent bénéficier d’orientations variables tout en gardant une bonne compacité.
Les espaces extérieurs deviennent ainsi plus souples dans leurs usages, permettant une déclinaison entre le passage public, les espaces communs, les accès aux logements et les parties privatives clairement identifiées.
Le projet s’inspire également d’une des typologies de l’habitat minier qui regroupe sous un même toit trois ou quatre logements.

L’écriture architecturale prolonge ce parti en travaillant les façades avec une matière unique, déclinée en trois finitions. L’utilisation de la brique sur l’ensemble des parois extérieures donne ainsi une forte cohérence à l’ensemble, tandis que la variation des couleurs de brique et de joint permet de distinguer les différents logements. Ainsi l’identité architecturale du projet installe un équilibre entre une appréhension d’ensemble et une lecture individuelle des logements.

 

<<< Vers précédent projet                                                                                                                         Vers prochain projet >>>                                                                                                                                                          

Version imprimable | Plan du site
© Sebastian Niemann Architectes SAS