MAISON NOUVELLE AVENTURE

Réhabilitation d'une maison 1930

 

LILLE

MAITRE D’OUVRAGE - Privé
MAITRE D’OEUVRE - Sebastian Niemann, Lille
BUDGET TRAVAUX - 168k € ht
SURFACE PLANCHER - 130m²
ETUDES - 2013
CHANTIER - 2014

 

 

Une de nos premières réalisations est le fruit d’un travail sensible et serein sur l’existant du quotidien urbain. Le projet porte sur la réhabilitation d’une maison en bande située sur la place du marché à Lille-Wazemmes.
Il s’agit d’un habitat bon marché du type dit « maison 1930 » dont la région comporte des milliers de variantes et dont la réhabilitation présente un véritable défi en termes architecturaux, techniques et environnementaux.

Nous avons cherché à transformer la maison de manière simple, mais précise afin de la rendre contemporaine au niveau fonctionnel et architectural, tout en la réancrant dans son contexte urbain.

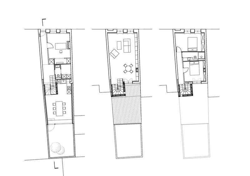
Notre intervention principale consiste à implanter une nouvelle cage d’escalier modelant le projet tant à l’extérieur qu’à l’intérieur :
Pendant que la façade côté marché est conservée, le projet se focalise sur l’intérieur de l’îlot, déjà fortement marqué par une multitude de boites. Ici, le RDC et l’escalier sont remplacés par des volumes simples en bois.
A l’intérieur, la nouvelle cage d’escalier structure les plans des trois étages dans l’adaptation aux nouveaux besoins d’habitation. Sa verticalité et ses ouvertures relient les différents espaces et donnent des vues cadrées sur l’extérieur.

 

 

<<< Vers précédent projet                                                                                                                                           Vers prochain projet >>> 

Version imprimable | Plan du site
© Sebastian Niemann Architectes SAS